GESELLSCHAFT FÜR IMMOBILIEN- UND FINANZIERUNGSVERMITTLUNG MBH COPYRIGHT 2012
GESELLSCHAFT FÜR IMMOBILIEN- UND FINANZIERUNGSVERMITTLUNG MBH COPYRIGHT 2012
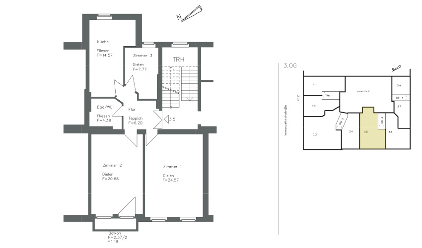
VH | 3.OG | 78QM - VERKAUFT
ECKDATEN
| ZIMMER | 3 |
| GRÖSSE | 78qm |
| LAGE | VH, 3.OG links |
| AUFZUG | Ja |
| BALKON / TERASSE | Ja |
| AUSSTATTUNG | GEPFLEGT |
| PREIS PRO QM | 3.565€/qm |
| KAUFPREIS | 278.000€ zzgl. 7,14% Käufer-Provision inkl. MwSt. |
| EXTRA | BALKON, ALTE DIELEN |
WOHNUNGEN