GESELLSCHAFT FÜR IMMOBILIEN- UND FINANZIERUNGSVERMITTLUNG MBH COPYRIGHT 2012
GESELLSCHAFT FÜR IMMOBILIEN- UND FINANZIERUNGSVERMITTLUNG MBH COPYRIGHT 2012
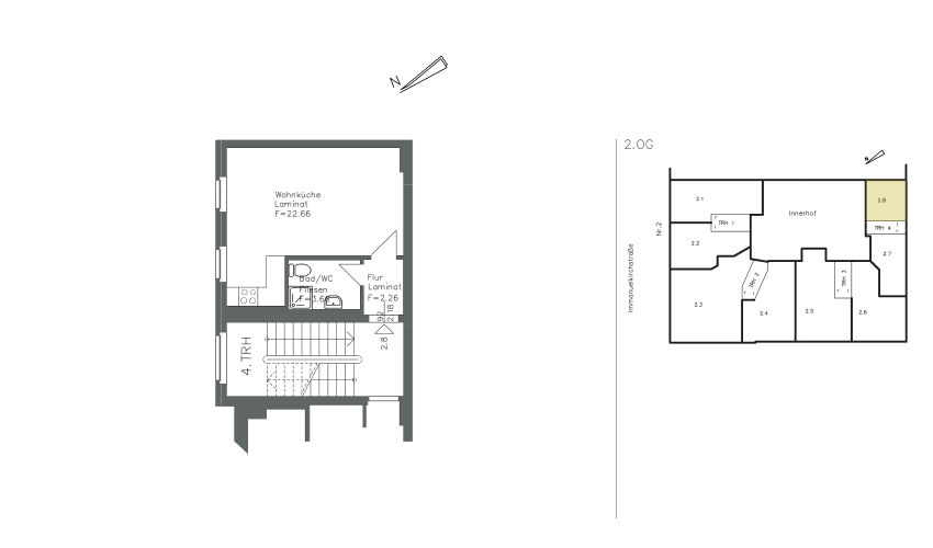
HH | 2.OG | 28.58QM
ECKDATEN
| ZIMMER | 1 |
| GRÖSSE | 28,58qm |
| LAGE | HH, 2.OG links |
| AUFZUG | Nein |
| BALKON / TERASSE | Nein |
| AUSSTATTUNG | Erstbezug nach Sanierung |
| PREIS PRO QM | 3.450€/qm |
| KAUFPREIS | 98.601€ zzgl. 7,14% Käufer-Provision inkl. MwSt. |
| EXTRA | NEUE DIELEN, NEUES BAD, BEZUGSFREI 31.12.13 |
WOHNUNGEN